【高端大宅】落日熔金,暮云合璧
更新時間:2022-11-24
| 設計風格 | 現代、法式、輕奢 | 戶型案例 | 案例面積 | 360m2 | |
|---|---|---|---|---|---|
| 樓盤名稱 | 保利紫山·紫泉別墅 | 所在城市 | 廣東-佛山 | 案例造價 | |
| 設計師 | 文淇 | ||||

案例說明:
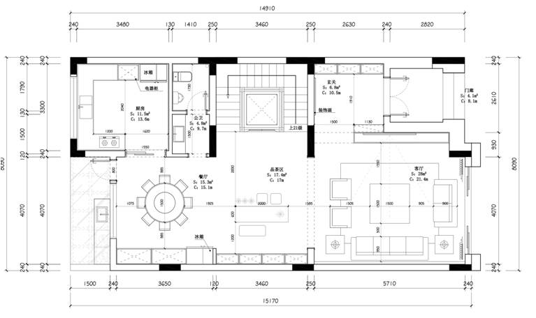
一樓:通過改造擴大了餐廳面積,同時新設了茶區的功能。色彩和材質的搭配讓整個空間更明亮干凈。
客廳:溫暖明亮,經濟耐看是本案的主要需求之一,剔除了法式復雜的線形后,融入了現代溫暖明亮的暖色系風格,材質上搭配巖板,給予了視覺上的沖擊力,成為業主期待的理想之家。
意式極簡的沙發永不過時,少即是多,功能齊全,線條簡潔,色彩典雅,以簡約的設計演繹最本質的輕奢美學。在現實踟躕而彷徨的生活中,尋覓一處高雅舒適的棲息之地。
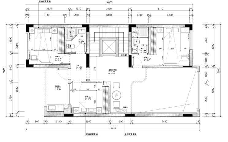
二樓:法式輕奢的主臥地面鋪木地板,定義靜謐舒適的氛圍,點綴金屬元素的壁燈和柜子,質感和輕奢氣息油然而生。孩子的臥室則更加童趣。
起居室:亞麻的主色調與裝點的暮色在和煦的光影中,愈發襯托出空間的優雅大氣。既有清雅舒緩的文墨幽香,又有休閑居家的溫馨舒適,不用太多的浮華修飾,就能彰顯家居生活的品質。
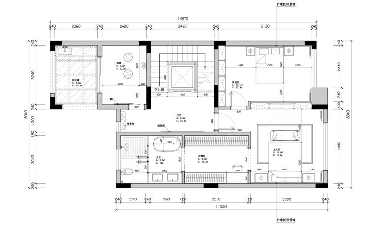
主人房:亞麻色的墻面因為石膏線的加入增加了不少立體度,搭配低飽和度顏色,也能打造出不一樣的視覺感受,適度加一點角花裝飾,提升層次感的同時,盡顯優雅。
多功能房:既可以作為平時休息的的私人天地,也可以作為主人讀書寫字的空間,它是最能體現居住者習慣、個性、愛好和品味的一個場所。
負一樓可以說是一個注重社交屬性打造的空間,既可以作為孩子的學習區域,又可以用來接待朋友。
在都市中,佛堂,一方安頓心靈之所。一張供案,一方佛龕,一處禮佛與休閑結合的空間。去除憂煩,凈化身心,一日三省吾身。在這里,心有常清凈,無風自清涼。在這里,心有山海,靜而不爭。在這里,任世事變化,尋一處心安






















京公網安備 11010802032436號