成人黄色在线看,国产永久视频,影音av资源站,91极品尤物,免费黄色av网址

歡迎來到北京闊達裝飾官網!
客服專線: 010-84580331   加盟專線: 010-82272748 (工作日:9:00-18:00)

預約加盟

預約裝修

客戶服務

返回頂部

×

闊達標準工程,一看就不同!

全國累計已有一百余家加盟公司

×

免費獲得家裝服務

全國各地業主都在申請!

×

闊達裝飾竭誠為您服務!

【黃石】嘉泰銀河灣

更新時間:2019-03-26

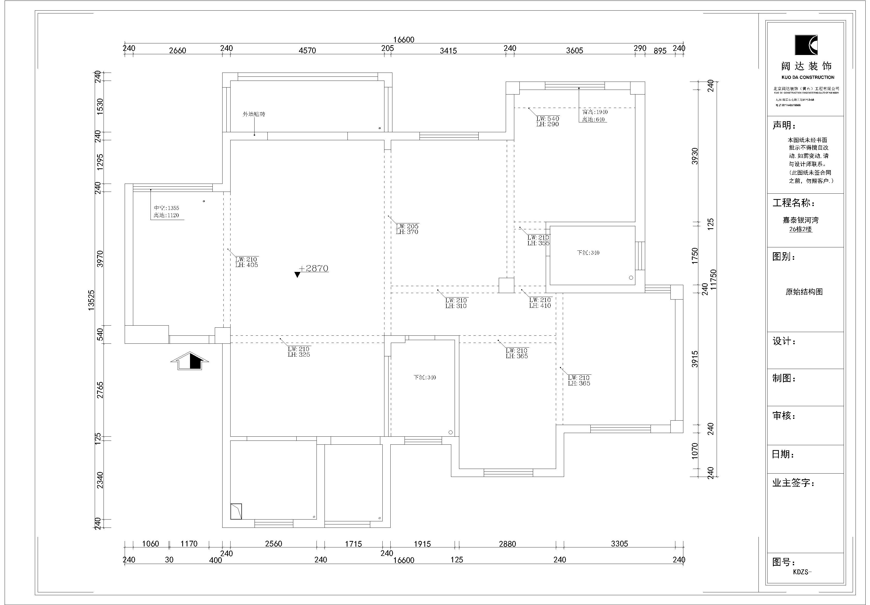
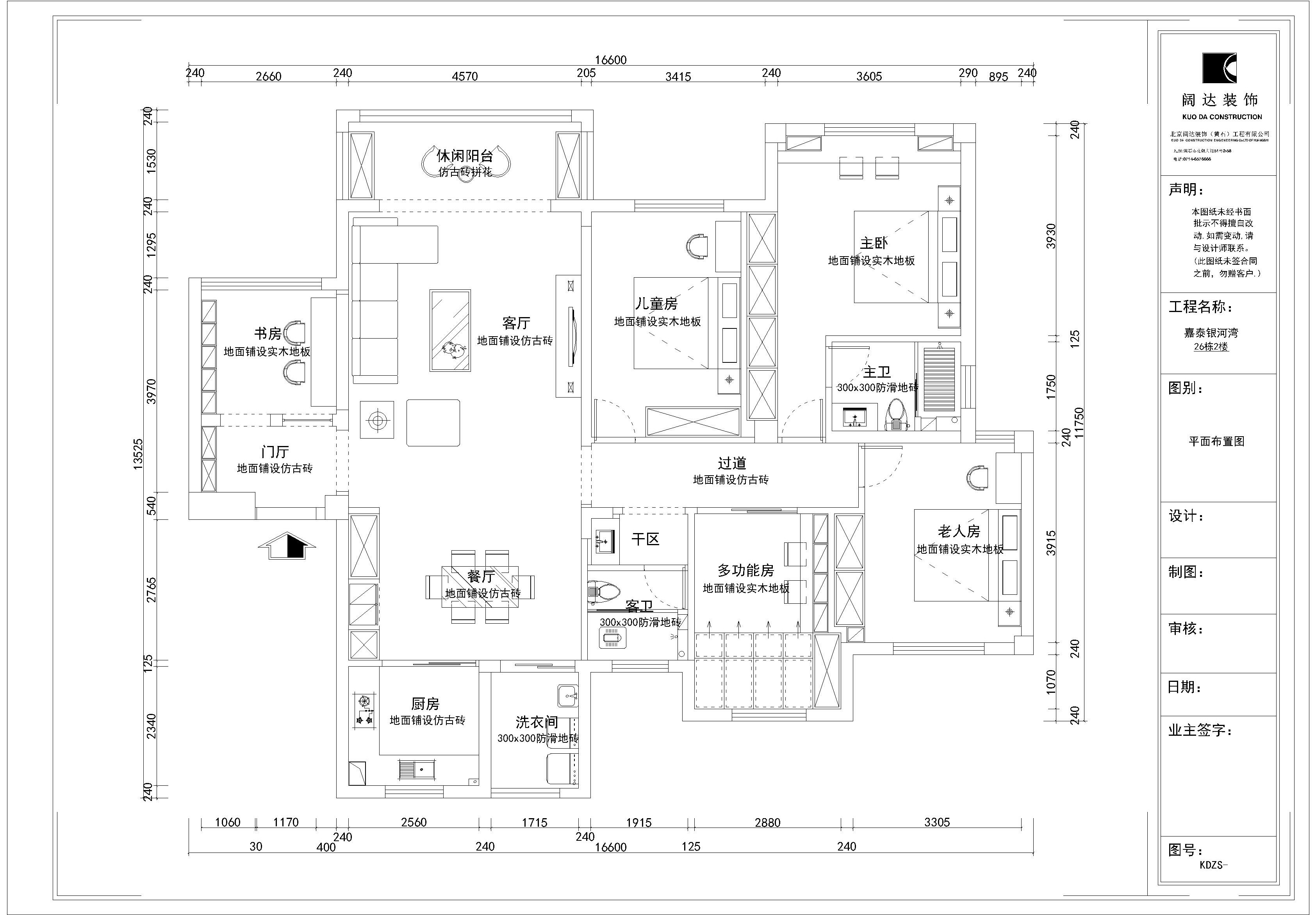
設計風格 簡美 戶型案例 四室兩廳一廚兩衛 案例面積 165
樓盤名稱 嘉泰銀河灣 所在城市 黃石市 案例造價 50萬
設計師 姜波

案例說明:

業主是一對年輕的90后夫妻,幸福過往,攜手相濡以沫,起從這個最初陌生到很熟悉的城市創業,一絲不茍的職業素養,嚴謹的工作態度,家的要求是時尚感和舒適感,多次的碰撞與溝通,和設計師達到更多的契合,于是便開啟了一場愉快的裝修設計之旅。
同風格案例:更多>>
【北京】恒大名都
恒大名都兩居19
【青島】圣羅尼克
圣羅尼克別墅57萬
【太原】府東龍城苑
府東龍城苑平層25萬
同面積案例: