成人黄色在线看,国产永久视频,影音av资源站,91极品尤物,免费黄色av网址

歡迎來到北京闊達裝飾官網!
客服專線: 010-84580331   加盟專線: 010-82272748 (工作日:9:00-18:00)

預約加盟

預約裝修

客戶服務

返回頂部

×

闊達標準工程,一看就不同!

全國累計已有一百余家加盟公司

×

免費獲得家裝服務

全國各地業主都在申請!

×

闊達裝飾竭誠為您服務!

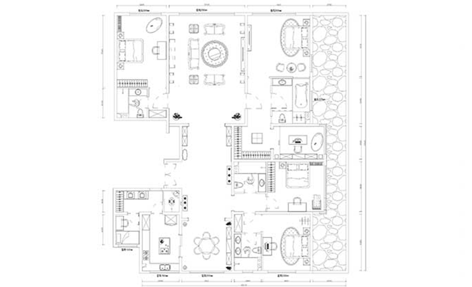
西山壹號院

更新時間:2017-02-06

設計風格 中式 戶型案例 平層 案例面積 340
樓盤名稱 西山壹號院 所在城市 北京 案例造價 26萬
設計師 任璐

案例說明:

本案運用新中式風格,典雅高貴的特制詮釋出中國文化的神韻,客廳是整個案例的點睛之筆、淡黃的內置燈帶、做舊處理的地板、線條清晰、層次分明的吊頂、極強的空間對稱感;餐廳的設計圍繞著本風格的特質所展開,在用材上充分體現了風格特點,墻面淳樸但質感極強的真石漆,頂面醇厚的木梁造型頂,地面英朗又層次分明的拼貼處理,有中式的傳統格調又有新時代物質的點綴。
餐廳:餐廳的設計圍繞著本風格的特質所展開,在用材上充分體現了風格特點,墻面淳樸但質感極強的真石漆,頂面醇厚的木梁造型頂,地面英朗又層次分明的拼貼處理,有中式的傳統格調又有新時代物質的點綴。
客廳:客廳是整個案例的點睛之筆、淡黃的內置燈帶、做舊處理的地板、線條清晰、層次分明的吊頂、極強的空間對稱感
同風格案例:更多>>
【青島】保利·海上羅蘭
保利·海上羅蘭別墅200萬
【青島】遠洋公館
遠洋公館三居65萬
【青島】海德公園
海德公園平層28萬
同面積案例: