成人黄色在线看,国产永久视频,影音av资源站,91极品尤物,免费黄色av网址

歡迎來到北京闊達裝飾官網!
客服專線: 010-84580331   加盟專線: 010-82272748 (工作日:9:00-18:00)

預約加盟

預約裝修

客戶服務

返回頂部

×

闊達標準工程,一看就不同!

全國累計已有一百余家加盟公司

×

免費獲得家裝服務

全國各地業主都在申請!

×

闊達裝飾竭誠為您服務!

龍湖好望山

更新時間:2017-02-06

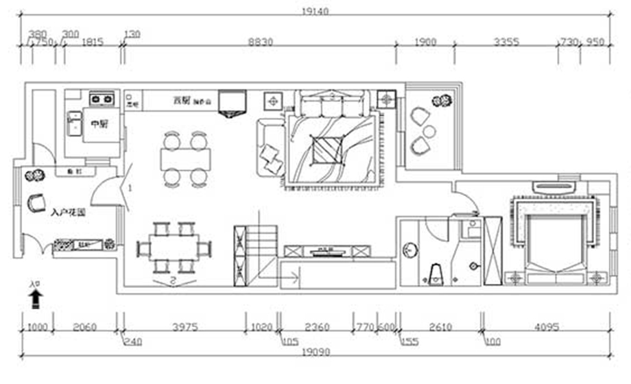
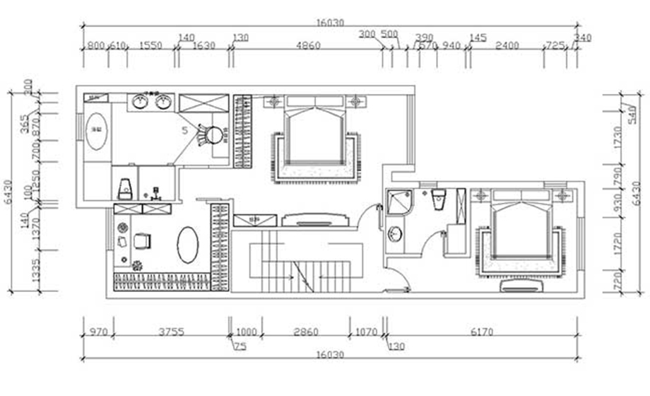
設計風格 歐式 戶型案例 三居 案例面積 300
樓盤名稱 龍湖好望山 所在城市 北京 案例造價 28萬
設計師

案例說明:

本案設計風格為歐式風格,營造典雅、自然、高貴的氣質、浪漫的情調是本案的主題。生活在繁雜多變的世界里已是煩擾不休,而自然的生活空間卻能讓人身心舒暢,感到寧靜和安逸;借著室內空間的解構和重組,便可以滿足我們對悠然自得的生活的向往和追求,讓我們在紛擾的現代生活中找到平衡,締造出一個令人心馳神往的寫意空間。
同風格案例:更多>>
【青島】中信-森林湖
中信-森林湖別墅360萬
【太原】碧桂園-怡佳別苑
碧桂園-怡佳別苑 別墅100萬
【新鄉】碧桂園
碧桂園四居15萬
同面積案例: